設計プラン
PLAN
半ビルトインガレージの家
南向きの敷地条件を活かした、2階建てのパッシブデザインハウス。
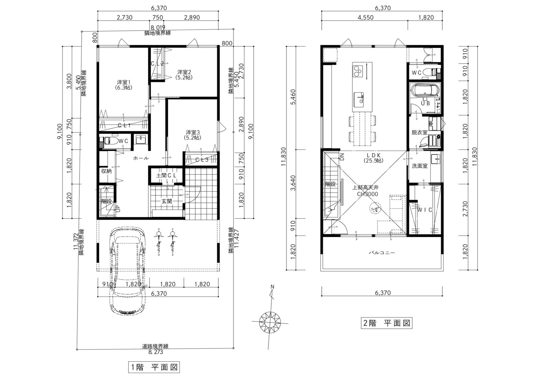
2台駐車可能な半ビルトインガレージを備え、車だけでなく自転車もゆとりをもって停められる計画としています。
1階には洋室を3部屋配置し、家族それぞれのプライベート空間を確保。あわせて土間クロークと手洗いスペースを設け、外から帰ってすぐに使える実用的な動線としました。
2階には高天井が生み出す開放感あふれるLDKを中心に、水回りと収納を縦に並べて配置。移動がスムーズで、日々の家事が自然と整う動線計画としています。
裏にある公園の緑を暮らしに取り込む窓配置にこだわった2台駐車可能な半ビルトインガレージハウス。
設計 魚谷声佳
DESIGNER'S POINT OF VIEW

外観
2台駐車可能な半ビルトインガレージを備え、車はもちろん、自転車もゆとりをもって停められる計画に。天候の影響を受けにくく、日々の使い勝手にも配慮された実用性の高いスペースとなっています。

玄関
外壁と一体感のある深い庇が、奥行きと落ち着きを感じさせる玄関ポーチ。建物の表情に陰影を与えながら、機能性とデザイン性を兼ね備えた印象的なエントランスとなっています。

玄関ホール
ゆとりある玄関ホール。靴やアウトドア用品はもちろん、ゴルフバッグや季節用品などもすっきりと収まる機能的な収納を備え、見た目の美しさと使い勝手の良さを両立した空間となっています。

手洗いスペース
玄関ホールには手洗いスペースとトイレを配置。外から帰ってすぐに使える実用的な動線とし、日常の使いやすさと衛生面にも配慮した計画となっています。

LDK
天井と床には柔らかな木目を活かし、空間全体に統一感と温もりを。アイランドキッチンからダイニング、リビングへと連続するレイアウトは、家族の距離感をちょうどよく保ちます。

リビング
バルコニーの緑とつながる視線の抜け、吹き抜けがもたらす圧倒的な開放感。プライバシーを守りつつゆったりと快適に過ごせる空間に仕上げます。

リビング
テレビ背面には存在感のある壁面を設け、空間のアクセントに。シンプルな構成でありながら、素材の重なりや陰影によって奥行きが感じられるデザインとなっています。

キッチン・ダイニング
素材には、やわらかく光を反射するグレージュトーンの面材を採用し、空間全体に落ち着いた印象をもたらします。

洗面室
洗面室のすぐ横には、脱衣室兼ランドリールームを配置。家事動線をコンパクトにまとめることで、日々の負担を軽減できる計画となっています。
RECOMMENDED このプランの家を建てられる土地
このプランを建てたい土地を選択してください
- 中鴻池町3丁目|東大阪市
- 4,200万円
- 137.23m2(41.51坪)
費用を計算したい土地を選択してください。
土地にかかる費用
- 土地価格
- 万円
- 地盤改良
- 80万円
- 外構工事
- 250万円
合計:万円
建物にかかる費用
- 建物価格(税込)
- 3,860万円
- 資材高騰費用
- 万円
- オプション
- 661万円
合計:4,521万円
合計の費用
- 販売価格(土地+建物)
- 万円
- 諸経費
- 200万円
総費用:万円
住宅ローン支払い
- 総費用
- 万円
- 自己資金
- 1,000万円
- 借入金額
- 万円
- 借入期間
- 35年
- 金利
- 0.37%












