設計プラン
PLAN
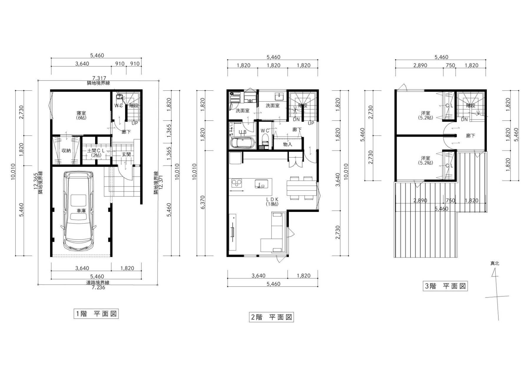
3階建てビルトインガレージハウス
ガレージや駐輪スペースも一体で計画した都市型ビルトインガレージハウスです。
設計 魚谷声佳
DESIGNER'S POINT OF VIEW

外観

ガレージ

LDK

キッチン

リビング

リビング

洗面室

洗面室・ランドリー

2階ホール
RECOMMENDED このプランの家を建てられる土地
このプランを建てたい土地を選択してください
- 鴻池町1丁目1号地|東大阪市
- 2,990万円
- 90.00m2(27.23坪)
- 鴻池町1丁目2号地|東大阪市
- 2,990万円
- 90.04m2(27.24坪)
費用を計算したい土地を選択してください。
土地にかかる費用
- 土地価格
- 万円
- 地盤改良
- 80万円
- 外構工事
- 200万円
合計:万円
建物にかかる費用
- 建物価格(税込)
- 3,721万円
- 資材高騰費用
- 万円
- オプション
- 257万円
合計:3,978万円
合計の費用
- 販売価格(土地+建物)
- 万円
- 諸経費
- 200万円
総費用:万円
住宅ローン支払い
- 総費用
- 万円
- 自己資金
- 1,000万円
- 借入金額
- 万円
- 借入期間
- 35年
- 金利
- 0.37%







