設計プラン
PLAN
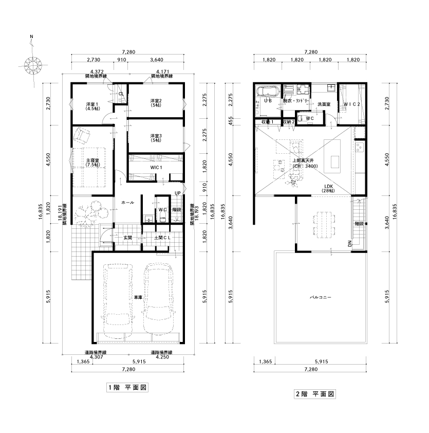
2.5-story building
1.5階分の高天井リビングを備えた、2階建ての都市型パッシブデザインハウス。
外部からの視線をしっかりと遮りながらも、内側にはプライベートな緑と開放感あふれる空間が広がります。
2台駐車可能なビルトインガレージの上には広々としたバルコニーを配置し、2階でも四季の移ろいを楽しむことができます。
リビングを高天井とすることで、陽の光を効率よく取り込みながら、心地よい開放感を実現。
都市に暮らしながらも自然を身近に感じられる、タイコーならではの都市型パッシブデザインハウスのご提案です。
閉ざすことで守り、内に開く。重厚な壁に包まれた先には静けさと安らぎに満ちた暮らしが広がる、守りと落ち着きのある家。
設計 前田良
DESIGNER'S POINT OF VIEW

外観
重厚な壁に包まれた先には静けさと安らぎに満ちた暮らしが広がる、守りと落ち着きのある家です。外部からの視線をしっかりと遮りながらも、内側にはプライベートな緑と開放感あふれる空間が広がります。

玄関
木調のシューズボックスと、タイル壁のコントラストが上品で、空間に落ち着きと温かみをもたらしています。

LDK
1.5階分の高天井リビング・キッチンを備えたLDK。キッチンからダイニング・リビングまで視線が抜け、家族がどこにいても気配が感じられる一体感のある構成です。

リビング
リビングを高天井とすることで、陽の光を効率よく取り込みながら、心地よい開放感を実現。

キッチン
無駄のない構成とマットな質感が印象的な、洗練されたアイランドキッチン。扉面材から壁面パネル、天板に至るまでトーンを統一することで、家具のような美しさが際立ちます。

ダイニング
天井の木ルーバーと間接照明が印象的なリビングの隣には水回り空間がまとめられています。

LDK
大開口の先にはテラスの植栽がライトアップされ、室内にいながら自然の潤いを感じられる贅沢な設え。まるで屋外ラウンジとひと続きのような空間の広がりを感じられます。

バルコニー
落ち着いた照明に照らされるテラスは、まるでホテルのラウンジのような洗練された雰囲気。日常の延長線上にある、ささやかで豊かな“非日常”を味わえます。

寝室
緑を切り取る窓を配置し、自然と一体になるような寝室空間。空間全体が静けさと温もりを兼ね備えた設計となっています。
ルームツアー
RECOMMENDED このプランの家を建てられる土地
このプランを建てたい土地を選択してください
- 放出東2丁目|鶴見区
- 8,500万円
- 155.54m2(47.05坪)
費用を計算したい土地を選択してください。
土地にかかる費用
- 土地価格
- 万円
- 地盤改良
- 100万円
- 外構工事
- 800万円
合計:万円
建物にかかる費用
- 建物価格(税込)
- 3,980万円
- 資材高騰費用
- 万円
- オプション
- 2,080万円
合計:6,060万円
合計の費用
- 販売価格(土地+建物)
- 万円
- 諸経費
- 200万円
総費用:万円
住宅ローン支払い
- 総費用
- 万円
- 自己資金
- 1,000万円
- 借入金額
- 万円
- 借入期間
- 35年
- 金利
- 0.37%












