設計プラン
PLAN
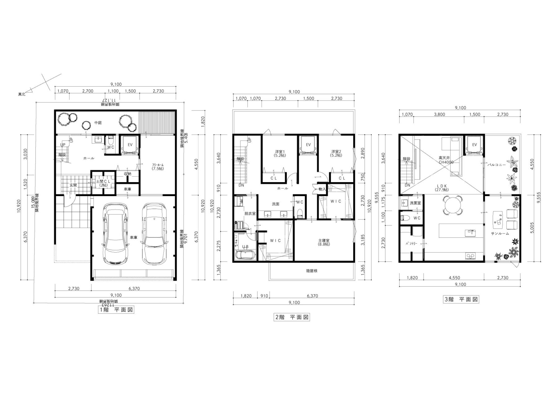
3階建てのビルトインガレージハウス
周囲を建物に囲まれた敷地条件を活かし、外部には閉じた構成としながら、内部には中庭を設けることで光と抜けを確保した住まい。
1階にはビルトインガレージを配置し、木調シャッターと外壁のやわらかな色味・質感で、重厚さの中に温かみをプラス。
道路側からの視線を遮りつつも、内側には落ち着いたプライベート空間が広がります。
都市の中で心地よく暮らすための住まいに仕上がりました。
プライバシーを確保しながら採光を最大化。閉じた外観と、内に広がる開放的な空間のコントラストが魅力の一邸です。
設計 魚谷声佳
DESIGNER'S POINT OF VIEW

外観
SE構法ならではの間口いっぱいに構えたビルトインガレージと、シンプルな箱型ボリュームで構成した都市型住宅。

玄関アプローチ
外部からの視線をやわらかく遮る木目調フェンスとサイクルポート付きのアプローチ空間。

玄関ホール
玄関に入ると、正面の大きな開口から中庭の緑が視界に広がる設計。ストリップ階段を通して光が奥まで届き、閉じた外観からは想像できない、やわらかく開放的な空間が広がります。

吹き抜けのあるLDK
3階にLDKを配置し、バルコニーと吹き抜けから安定した光を取り込む計画。周囲の建物に囲まれた環境でも、空に近い位置で過ごすことで、明るく開放的な暮らしを実現しました。

木の温かみを感じるLDK
キッチンからダイニング、リビングまでを一体で計画し、家族の気配を感じながら過ごせるレイアウトとしています。

リビング
空間のデザインに溶け込むよう計画したエレベーター。生活感を抑えながら、機能性と快適性を両立しています。

キッチン・ダイニング
サンルームに隣接してキッチンを配置。料理をしながら中庭の光や緑を感じられる、心地よい環境としました。

サンルーム
バルコニーとは別に、光をたっぷり取り込むサンルームを計画。天候に左右されず使える空間として、くつろぎの場や家事スペースなど、多用途に活用できます。

洗面室
ゆとりのある幅で計画した、ダブルボウルの洗面スペース。木の面材と石調カウンターでまとめ、落ち着きのある上質な空間に仕上げています。
RECOMMENDED このプランの家を建てられる土地
このプランを建てたい土地を選択してください
- 山坂4丁目|東住吉区
- 11,000万円
- 169.04m2(51.13坪)
費用を計算したい土地を選択してください。
土地にかかる費用
- 土地価格
- 万円
- 地盤改良
- 100万円
- 外構工事
- 450万円
合計:万円
建物にかかる費用
- 建物価格(税込)
- 7,689万円
- 資材高騰費用
- 万円
- オプション
- 2,823万円
合計:10,512万円
合計の費用
- 販売価格(土地+建物)
- 万円
- 諸経費
- 200万円
総費用:万円
住宅ローン支払い
- 総費用
- 万円
- 自己資金
- 1,000万円
- 借入金額
- 万円
- 借入期間
- 35年
- 金利
- 0.37%











