設計プラン
PLAN
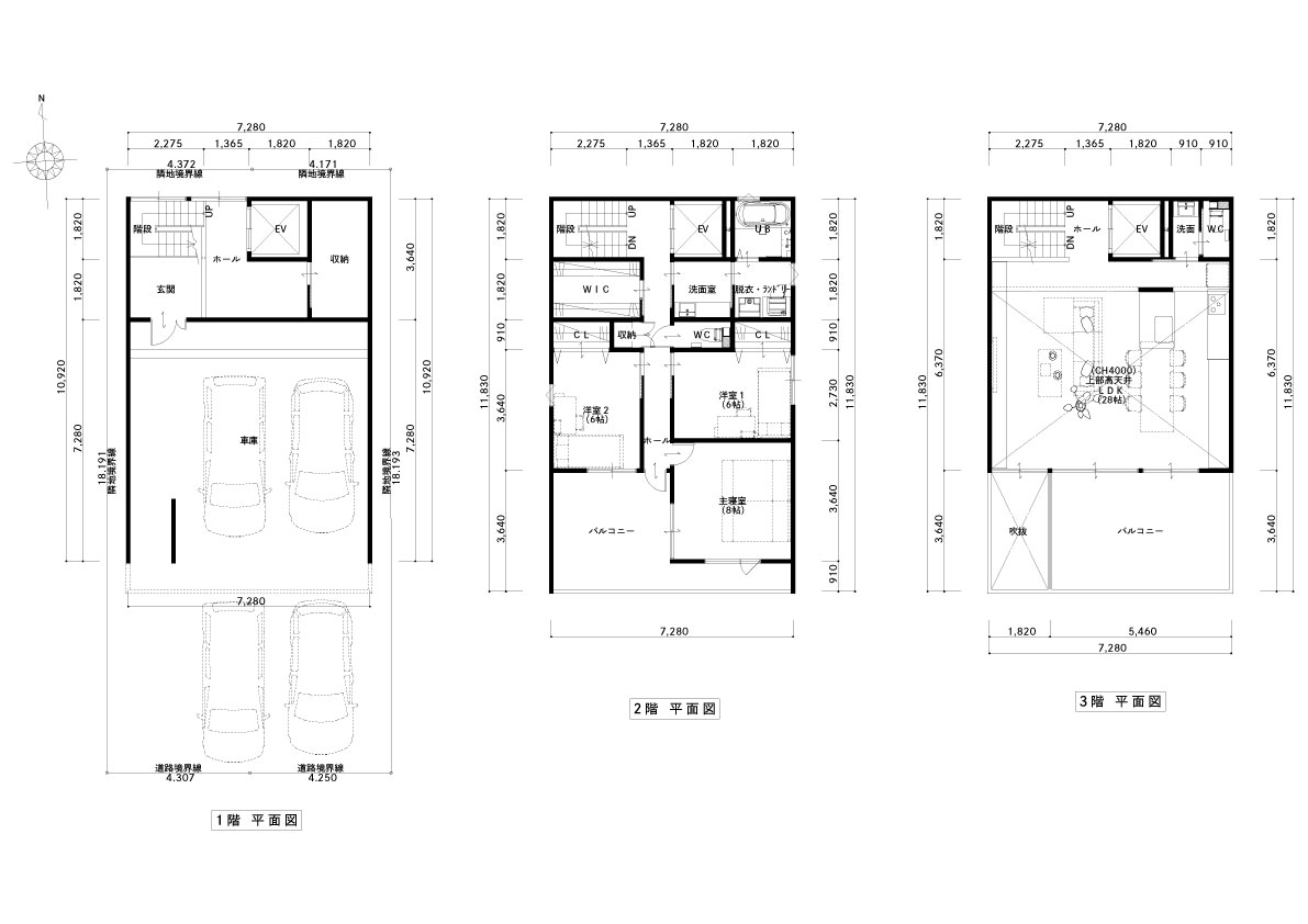
3-story building
3階建て都市型パッシブデザインハウス。
都市の喧騒の中でも、外からの視線をしっかりと遮りつつ、内部には光と風を取り込んだ明るく開放的な空間が広がります。
中庭や吹き抜けを設けることで、プライバシーを守りながら家族が心地よく過ごせる住まいに。
外観はシンプルで重厚感を持たせ、街並みに調和しながらも凛とした存在感を放ちます。
限られた敷地でもゆとりある暮らしを叶える、タイコーならではの都市型パッシブデザインハウスのご提案です。
光と風は通しながら、視線は遮る。都市に求められるプライバシーと開放感をスクリーンが美しく両立させる、調和と洗練のある家。
設計 前田良
DESIGNER'S POINT OF VIEW

外観
シンプルなカタチではあるものの素材感や色味で重厚感を持たせ、街並みに調和しながらも凛とした存在感を放ちます。

インナーガレージ
プライバシーを守るシャッターゲートの奥には4台駐車(2台ビルトイン)可能なゆとりあるスペースがあります。

玄関ホール
スチール階段のシャープなラインと、グレーの大判タイルがつくる上品な空間。窓と同じ高さに設けたミラーが空間に更なる奥行を感じさせます。ホールにはホームエレベーターを設置。裏側には大容量の収納スペースを確保しています。

LDK
全体を高天井とした大空間&陽の光がたっぷり入り込む大開口のLDK。南に配置したバルコニーは内にいながらも外を感じさせ、視線の抜けと潤いをもたらします。

LDK
夜のLDKは落ち着いた照明計画によって、上質な空気に包まれます。石目調タイル壁に落ちる間接照明が、空間に陰影をもたらし、時間を忘れるような安らぎを演出。

リビング
吹き抜けいっぱいに広がる窓から差し込む自然光が、テレビ背面のアクセントウォールやインテリアをやさしく照らし、空間全体に清々しさをもたらします。

キッチン・ダイニング
キッチンはグレートーンの壁と木目が調和し、洗練された印象に。アイランドカウンターとダイニングが一体化することで、機能とデザインが融合した場となっています。

庭
高い壁に囲まれ、外からの視線を遮りながら、青空と緑を楽しめる特別な場所。窓越しに室内と緩やかにつながります。

寝室
落ち着いたトーンで統一された室内に、間接照明のやわらかな光が壁面を照らします。視線の先には植栽が静かに揺れ、昼夜問わず自然を感じられる、癒しの景色。
ルームツアー
RECOMMENDED このプランの家を建てられる土地
このプランを建てたい土地を選択してください
- 放出東2丁目|鶴見区
- 8,500万円
- 155.54m2(47.05坪)
費用を計算したい土地を選択してください。
土地にかかる費用
- 土地価格
- 万円
- 地盤改良
- 100万円
- 外構工事
- 2,500万円
合計:万円
建物にかかる費用
- 建物価格(税込)
- 6,335万円
- 資材高騰費用
- 万円
- オプション
- 2,442万円
合計:8,777万円
合計の費用
- 販売価格(土地+建物)
- 万円
- 諸経費
- 200万円
総費用:万円
住宅ローン支払い
- 総費用
- 万円
- 自己資金
- 1,000万円
- 借入金額
- 万円
- 借入期間
- 35年
- 金利
- 0.37%












